|INFO|MAP|RANK|GOODS|HOME|
●河北町 T軒 店舗・住宅新築工事
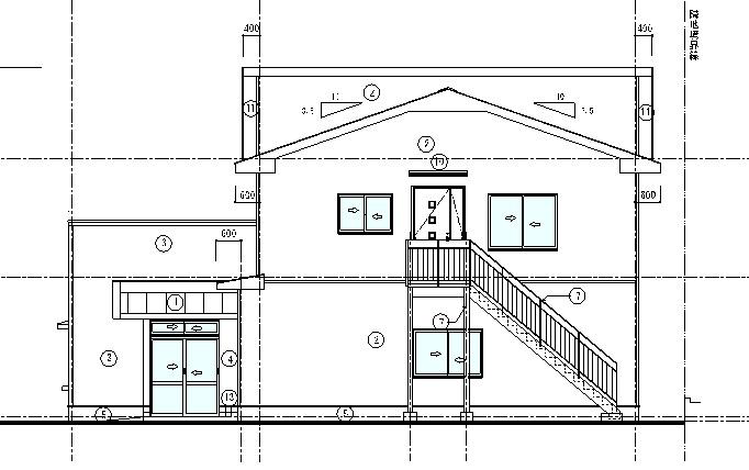
『升川建設ハウス事業部』が建てる店舗併用住宅。
 
↓↓↓↓↓↓↓↓↓↓↓↓↓↓↓↓↓
 
『河北町 T軒 店舗・住宅新築工事』
 
 
現場周辺の皆様へ
工事中は騒音やほこり、特に工事車両の出入りなどで、何かとご迷惑をおかけすることと存じますが、工事中には最新の注意をはらい絶対安全と環境整理に努めてまいります。何卒よろしくお願い申し上げます。

お問合せはこちらまで
『有限会社ドゥー建築事務所』
TEL 023-654-7802
『ますかわホーム』
フリーダイヤル 0120−371−439
http://www.masukawa.jp
e-mail : house@masukawa.co.jp


画像 ( )
2011.06.28
(C)T軒 店舗・住宅新築工事のノート

|INFO|MAP|RANK|GOODS|HOME|
(C) Yamagatan All Rights Reserved.
Powered by samidare
system:network media mobile